Skip to Content

Contemporary Studio Space

A serene and balanced workspace designed for creativity and comfort. This interior combines soft neutral tones with clean modern lines, creating a calming and inspiring atmosphere. The light wood table and textured rug anchor the space, while the floating shelves display a curated selection of materials and finishes, reflecting attention to craftsmanship and detail. Subtle ambient lighting enhances the minimalist aesthetic, complemented by sculptural decor and natural textures. The design achieves a perfect harmony between function and elegance—ideal for focused work, design discussions, or creative exploration.

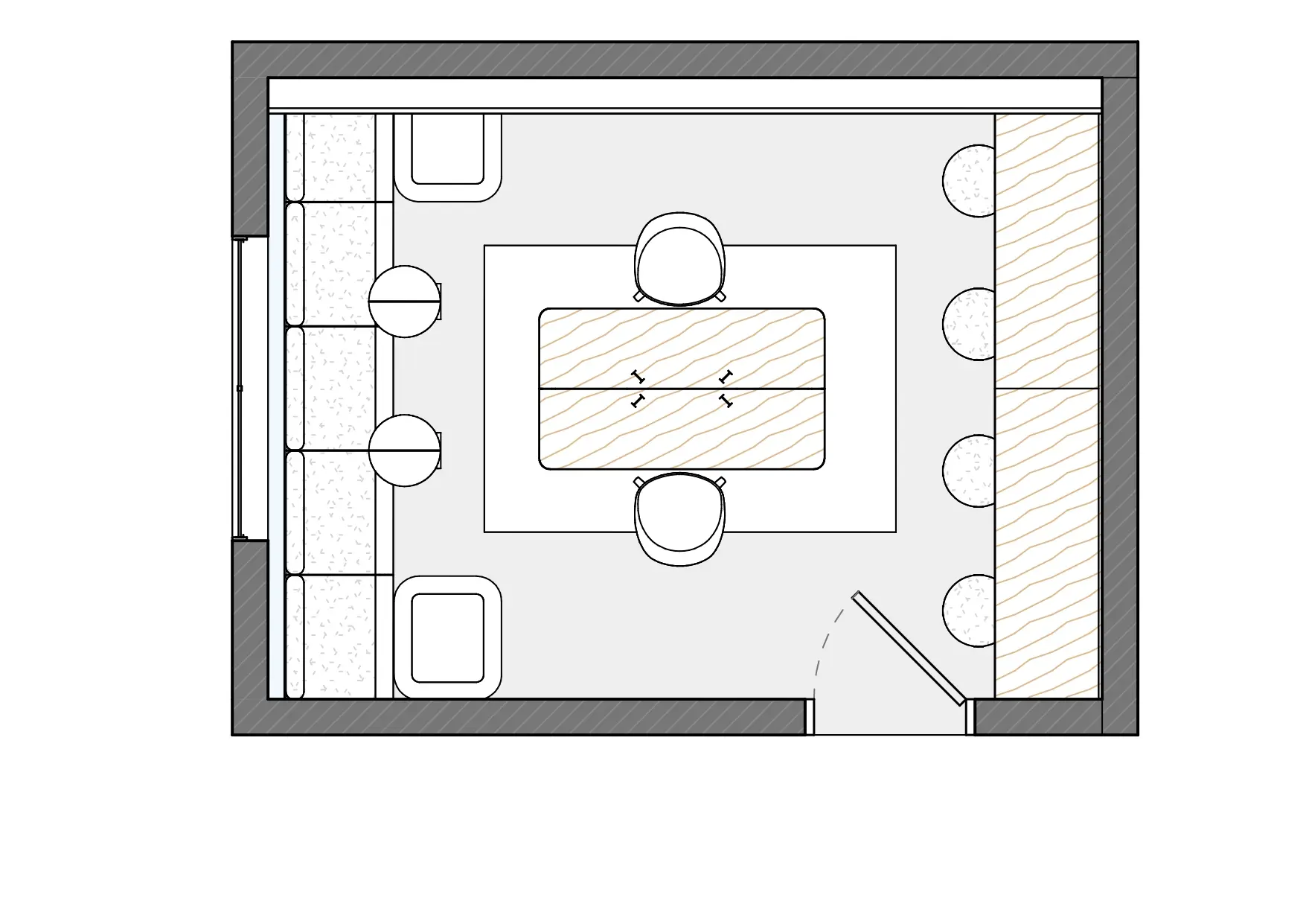
The 16-square-meter office layout is designed to balance functionality with refined minimalism. The plan features a central workspace for two, complemented by a comfortable seating area for informal meetings and a built-in shelving wall for material samples and display. Clean circulation and efficient furniture placement optimize space while maintaining an open, inviting atmosphere. Natural light and soft finishes enhance comfort and focus, making the office ideal for creative and professional work. Every element—from desk positioning to lighting integration—reflects thoughtful spatial organization and modern design sensibility.

360 Degree Photos 


Discover a unique, interactive experience with 360-degree photos of our modern office space. Using just your phone, explore every detail and angle of the design for an immersive virtual tour that brings the space to life like never before.  


,l,