Skip to Content

Mania Office embodies a vibrant interpretation of modern workspace design, where creativity and energy define every detail. Spanning 70 square meters, the interior blends functionality with a bold artistic spirit. The space features a clean modern layout enhanced by a dynamic palette of red, yellow, and blue—primary colors that evoke balance, optimism, and clarity. Thoughtful lighting, minimalist furniture, and open circulation create an inviting atmosphere for collaboration and focus. Each zone flows seamlessly into the next, reflecting a design language that celebrates individuality, movement, and contemporary expression.

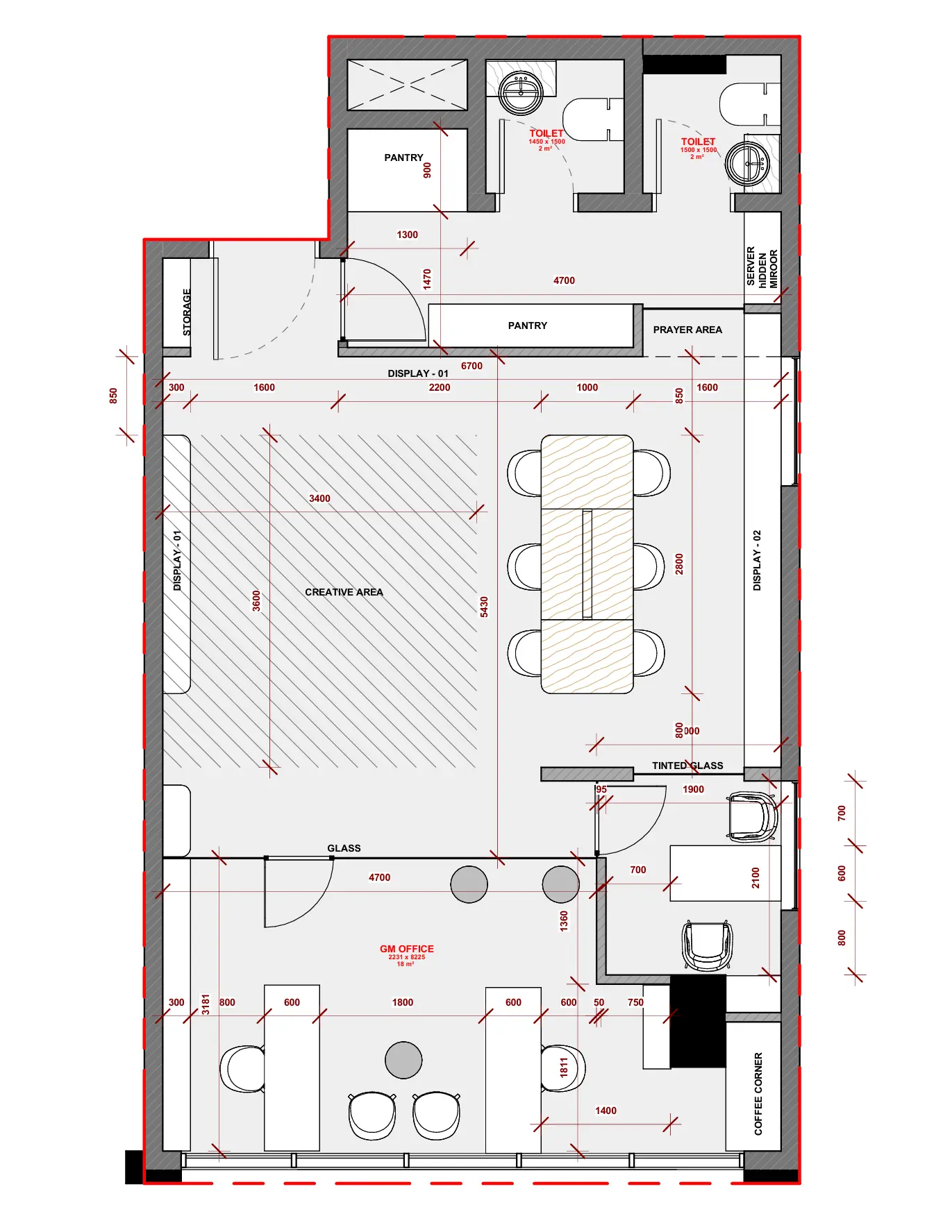
Plan 

This 70-square-meter workspace is designed with a focus on flexibility, comfort, and refined minimalism. The layout integrates open collaborative zones with defined private areas, creating a balanced environment for both teamwork and concentration. A central meeting table anchors the space, while built-in storage and shelving provide practical organization without visual clutter. Natural lighting, soft materials, and a neutral palette enhance the sense of openness and calm. Every detail—from circulation flow to furniture alignment—reflects a thoughtful approach to modern workspace design that supports creativity and functionality.


360 Degree Photos 


Discover a unique, interactive experience with 360-degree photos of our modern office space. Using just your phone, explore every detail and angle of the design for an immersive virtual tour that brings the space to life like never before.  


,l,